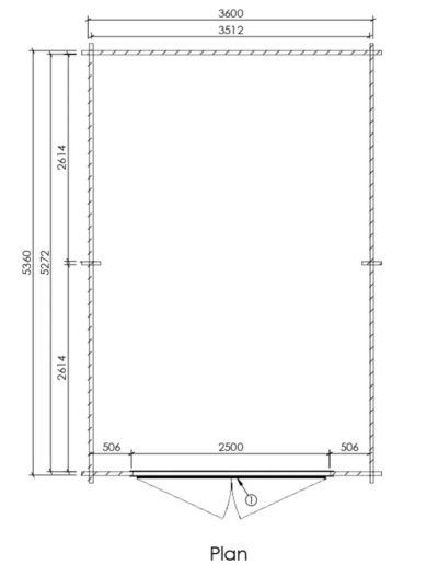
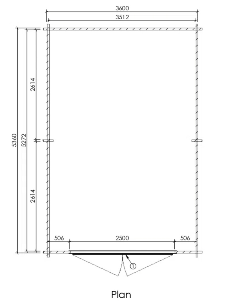
Garage en bois « RADON 1 » d’une surface de 19 m², il offre un beau volume pour ranger votre véhicule.
Structure robuste avec ses madriers de 44 mm
Surface totale de 19 m²
Dimensions : 3,4 x 5,5 m
Prix à partir de 6690 € TTC
- KIT modèle non isolé : à partir de 352 € / m²
- Clé en mains : à partir de 1400 € / m²


